98 м2
по запросу
  • Площадь: 98
  • Этажей: 2
  • Количество спален: 2
Подробнее
Заказать расчет стоимости Задать вопрос

В предложение входит:

  • Фундамент: ленточный с несъемной опалубкой из ППС, с устройством гильз под коммуникации и бетонной стяжкой (плита) с устройством бетонных ступеней парадного крыльца.
  • Электрика: разведена внутри стен в металлическом гофрированном рукаве кабель медный монолитный сечением 2,5 мм2 в двойной негорючей изоляции, разветкоробки, подрозетники. Верхний свет, выключатель, 2-3 розетки на помещение, освещение над входом, общий распределительный щит с автоматами по группам.
  • Дверь: входная ФОРПОСТ А-34(Парус/Маэстро) с монтажом.
  • Окна: металлопластиковый пятикамерный профиль белый, стеклопакет 2 стекла с покрытием «термофлот», отливы металл белые, подоконники ПВХ белые.
  • Кровля: металлочерепица с водосточной системой, свесы с открытыми кобылками.
  • Фасад: утепление - вата фасадная 50 мм, сетка из стекловолокна, клей армирующий, декоративная акриловая штукатурка короед, до двух цветов на выбор по каталогу «ПРОФИКС». Отделка цоколя не предусмотрена.
  • Сантехника и отопление: прокладка магистралей воды (из труб ПВХ, без котла и радиаторов), канализации и отопления по точкам, без установки сантехнического оборудования. Дополнительная группа розеток для конвекторов( в случаи электрического отопления).

Стеновой комплект

  • Каркасная конструкция из сухого калиброванного леса хвойных пород. Все деревянные элементы каркасной конструкции обработаны огне-биозащитой.
  • Внешние стены (изнутри наружу): ГКЛ влагостойкий 12,5 мм, контр обрешетка рейка 20*50 мм с шагом 400 мм, пароизоляционная пленка, брус 50*150 мм с шагом 600 мм с утеплителем 150 мм, OSB 10 мм, ветра-влагозащита.
  • Перегородки: брус 50*100 мм с шагом 600 мм с утеплителем 100 мм, пароизоляционная пленка с ГКЛ 12,5 мм с двух сторон.
  • Перекрытие меж этажное (снизу вверх): ГКЛ 9 мм, контр обрешетка рейка 20*50 с шагом 400 мм, пароизоляционная пленка, брус 50*200 мм с утеплителем 200 мм, OSB 22 мм.
  • Перекрытие чердачное (снизу вверх): ГКЛ 9 мм, контр обрешетка рейка 20*50 с шагом 400 мм, пароизоляционная пленка, брус 50*150 мм с утеплителем 200 мм.
  • Стропильная система: брус 50*150, мембрана паропропускающая, контр обрешетка брус 25*50 мм, обрешетка доска 100*25 мм.
  • Наружные стены, скаты и чердачное перекрытие утепляется базальтовым утеплителем, перегородки и межэтажные перекрытия звукоизоляционная вата

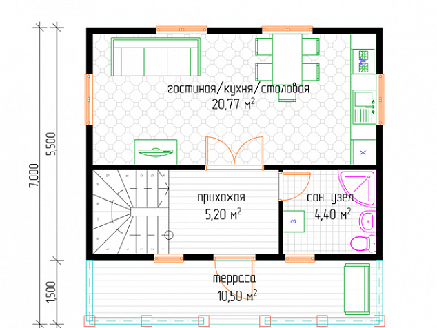
Планировки

Неман
Неман

Заказать расчет стоимости
Оформите заявку на сайте, мы свяжемся с вами в ближайшее время и ответим на все интересующие вопросы.